En Venta
USD800.000
Casa
VIDA CLUB DE CAMPO Barrio Privado - Funes
Código: 170828

Av. Arturo Illia 158, S2132 Funes, Santa Fe, Argentina, Funes, Santa Fe, Argentina.

Compartir esta Propiedad

Descripción de la Propiedad

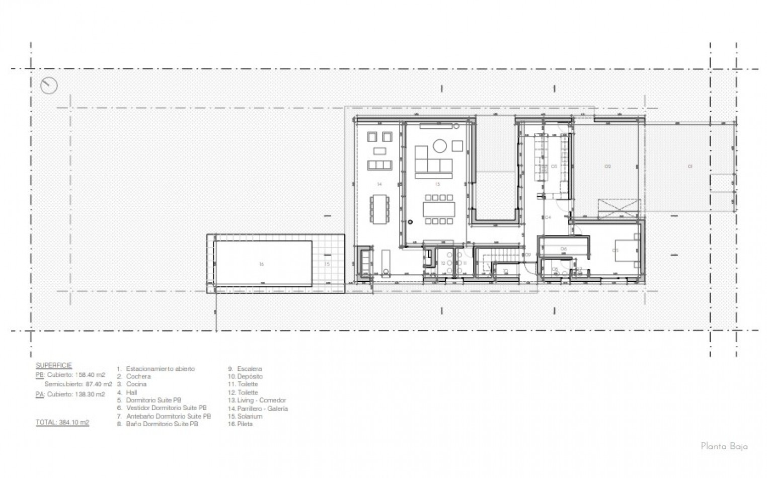
Casa de 4 dormitorios + playroom con planta baja y primer piso, ubicada en VIDA CLUB DE CAMPO . Barrio Cerrado

Orientación fondo Norte.
El ingreso cuenta con cochera semi-cubierta para dos autos junto con el ingreso peatonal.
La llegada a la puerta principal es mediante un semi-cubierto el cual atraviesa un patio de acceso
con vegetación, cuidando siempre la privacidad desde la calle. Al ingresar, el hall vincula los espa-
cios principales de la casa así como la escalera hacia planta alta y el toilette de recepción.
Hacia el fondo se llega al living-comedor, un espacio bien iluminado, amplio y generoso en dimen-
siones. Este ambiente tiene ingreso de luz desde el patio y vista hacia el jardín de fondo, rodeán-
dose así de vegetación y contacto hacia el exterior. Desde el living-comedor se accede a la galería,
que cuenta con un parrillero completo y un toilette. Hacia el fondo se encuentra la piscina con sola-
rium, la cual esta posicionada en el terreno para su maximo aprovechamiento solar.

En Planta Baja podemos encontrar la Mastersuite, de fácil acceso y con gran privacidad, fluidez
en su recorrido. En su interior nos encontramos con el vestidor de grandes dimensiones y un baño
completo que cuenta con ante-baño, espacio de ducha generoso e iluminación y ventilación natu-
ral.
En cuanto a la cocina, se encuentra hacia el frente de la casa. La misma cuenta con mobiliario
completo, una isla con desayunador y extraccion, y es vinculada a un patio privado con vegetación
e ingreso de luz norte. La cocina posee un ingreso independiente.

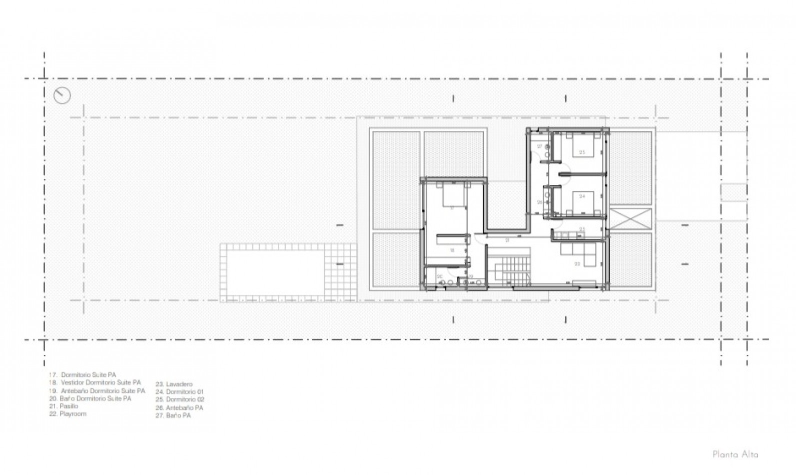
El acceso a la planta alta se realiza a través de una amplia escalera con descanso. Por un lado, se
encuentran dos dormitorios secundarios de generosas dimensiones, un playroom y un baño com-
pleto con antebaño y lavadero. Por el otro, un tercer dormitorio secundario en suite, que cuenta con
vestidor, antebaño y baño completo.
La casa fue concebida de forma que tenga la privacidad necesaria y un gran ingreso de iluminación
y ventilación natural. En su recorrido se priorizo la comodidad y su uso simultaneo, dividiendo los
espacios para un mayor aprovechamiento.

Terminaciones:
o Muros exteriores material de frente textura fina color silueta y yeso en interiores.
o Cielorraso suspendido de yeso en interior, cochera y galería losa de hormigón visto.
o Aberturas de aluminio A40 color bronce flamia con vidrio DVH.
o Puertas interiores de MDF laqueado color blanco.
o Piso interior cocina, living, comedor, galería, toilettes, lavadero y depósito Porcellanato
Villagres Berlin 63x108 o similar, zocalos PVC.
o Piso interior Mastersuite y PA ingeniería de madera roble europeo, zócalos de MDF
prepintados.
o Piso vereda, ingreso peatonal y vehicular de hormigón llaneado color gris perla.
o Pedada de escalera revestida en Purastone color blanco paloma o similar.
o Cocina con muebles de melamina blanca y frentes laqueados color Sahara. Mesada de
purastone color gris. Bacha marca Johnson Luxor y monocomando FV. Lavadero con
muebles de melamina color blanco en interior y frentes. Mesada de Purastone
color blanco norte. Pileta de lavadero con fregadero marca Johnson y monocomando FV.
o Vestidores con puertas y frentes de melamina color Sahara e interior de melamina color
blanco o similar.
o Placares con puertas corredizas de melamina blanca.
o Baños: mampara de duchas fijas en vidrio templado. Artefactos sanitarios marca Ferrum
línea Bari o similar. Griferías marca Ferrum.

Incluye:
o Instalación sanitaria, gas y eléctrica completa.
o Calefacción radiadores con caldera dual.
o Pileta completa, con sistema de filtrado y perforación.
o Anafe y Horno.
o Artafectos de iluminación puntual embutidos LED 3watts.


PRECIO USS 800.000.-


¡No te pierdas esta oportunidad única!.
Contactanos para obtener más información y programar una visita a través de WhatsApp al 341 6750344.

LOTUS Inmobiliaria
C.I. 2326

Mas detalles
  • Pileta
  • Parrilla
  • Seguridad 24hs.
  • Agua Corriente
  • Cloacas
  • Electricidad
  • Red Gas Natural
Ubicación